













Dieses gepflegte und voll vermietete, stetig instand gehaltene Mehrfamilienhaus aus dem Jahr 1954 mit Anbau aus 1964 überzeugt durch seine vielseitige Nutzung, stabile Mieteinnahmen und eine gesmat Grundstücksgröße von ca. 1.042 m² (588m² +284m²+170m²). Mit einer jährlichen Nettokaltmiete ab 01.02.2026 von rund 20.088 € bietet die Immobilie eine solide Basis für Kapitalanleger und zugleich Potenzial für künftige Eigen- oder Teilnutzung.
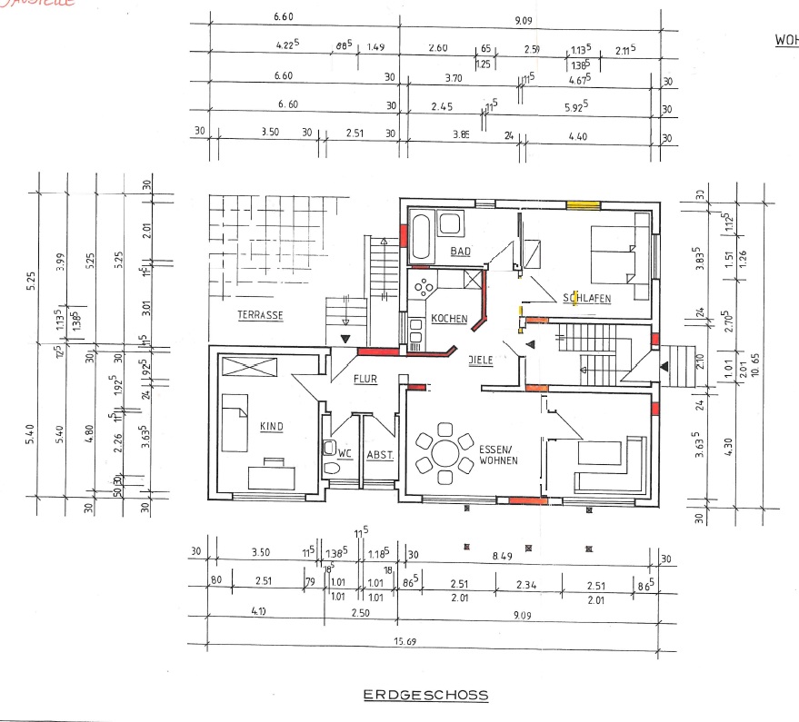
Im Erdgeschoss befindet sich derzeit eine Praxisfläche mit ca. 123 m², bestehend aus einer Diele, drei Behandlungsräumen, Empfangs- und Wartebereich, Küche, Bad, separatem WC sowie einem Abstellraum. Der Zugang zur Terrasse rundet das Raumangebot ab. Diese Einheit lässt sich bei Bedarf mit überschaubarem Aufwand wieder in Wohnraum umgestalten – ideal für Eigennutzer, die Wohnen und Arbeiten verbinden möchten.
Das Obergeschoss beherbergt eine Wohnung mit ca. 105 m² Wohnfläche. Sie überzeugt durch einen hellen Wohn- und Essbereich mit Kaminanschluss, zwei Schlafzimmer, eine Küche, Bad, Gäste-WC, Abstellraum sowie einen Balkon mit schöner Aussicht.
Im Dachgeschoss steht eine weitere Wohneinheit mit ca. 82 m² Wohnfläche zur Verfügung. Hier erwarten Sie ein offener Wohnbereich mit angrenzender Essküche, ein Bad, Gäste WC, zwei Schlafzimmer – eines davon mit Balkonzugang – sowie ein zusätzlicher Abstellraum.
Das Kellergeschoss bietet ausreichend Stauraum für alle Parteien. Neben den Mieterkellern stehen ein gemeinschaftlicher Hauswirtschaftsraum sowie der Heizungsraum mit Öltanks zur Verfügung. Von hier besteht ein direkter Zugang in den Garten.
Zur Immobilie gehören mehrere PKW-Stellplätze sowie ein angrenzendes Wiesengrundstück, das derzeit von einem Mieter genutzt und gepflegt wird.
Dieses Objekt ist sowohl für Investoren mit langfristiger Strategie als auch für Selbstnutzer mit Zukunftsplanung interessant – sei es zur Eigennutzung einzelner Einheiten, zur teilweisen Vermietung zur Entlastung der Finanzierung oder als Mehrgenerationenhaus mit Raum für mehrere Familienmitglieder. Eine Immobilie mit Charme, laufend gepflegt, stetig instand gehalten und mit zahlreichen Gestaltungsmöglichkeiten für die Zukunft.
Raumaufteilung
Erdgeschoss (Praxis ca. 123 m², derzeit vermietet):
Diele, Empfangsbereich, drei Behandlungsräume, Wartebereich, Küche, Bad, separates WC, Abstellraum, Terrassenzugang
(bei Bedarf zu Wohnraum umwandelbar)
Obergeschoss (Wohnung ca. 105 m²):
Diele, offener Wohn- und Essbereich mit Kaminanschlussmöglichkeit, zwei Schlafzimmer, Küche, Bad, Gäste-WC, Abstellraum, Balkon
Dachgeschoss (Wohnung ca. 82 m²):
Offene Diele mit Wohnbereich, angrenzende Küche, zwei Schlafzimmer (davon eins mit Balkonzugang), Bad, Abstellraum
Kellergeschoss:
Kellerräume je Einheit, gemeinschaftlicher Hauswirtschaftsraum, Heizungsraum mit Öllager, Zugang in den Garten
Erneuerungen 1987–1998
Außenbereich: kompletter neuer Außenputz, am Anbau Dach neu eingedeckt und Dachrinnen erneuert
Technische Installationen: Heizungsanlage inklusive Heizöltanks, Sanitär- und Elektroinstallationen erneuert, neue Satellitenanlage installiert
Einheiten: alle Badezimmer eneruert, Gäste-WCs + Küchen gefliest, Wohnungseingangstüren erneuert, neue Bodenbeläge verlegt
Erdgeschoss: Terrasse neu errichtet, Praxisräume Warm und Kaltwasseranschlüsse installiert,
Dachgeschoss: neuer Balkon angebaut, neue Balkontür eingesetzt
Kellergeschoss: Kellerdecke gedämmt, Decken mit Rigps, teilweise Böden gefliest,
Willkommen in Eppenrod – einem Ort, der Ruhe, Natur und ideale Erreichbarkeit perfekt vereint. Eingebettet in die sanfte Hügellandschaft des Rhein-Lahn-Kreises genießen Sie hier ländliche Idylle mit kurzen Wegen in die Stadt. Über die L325 und die nahe A3 gelangen Sie in wenigen Minuten nach Limburg oder Montabaur, wo Ihnen mit den ICE-Bahnhöfen schnelle Verbindungen nach Köln und Frankfurt zur Verfügung stehen.
In den umliegenden Nachbarorten – unter anderem Nentershausen und Görgeshausen – finden Sie alles, was Sie für den täglichen Bedarf benötigen: Einkaufsmöglichkeiten, Schulen, Ärzte und vielfältige Freizeitangebote.
Eppenrod steht für entspanntes Wohnen im Grünen mit dem Komfort einer ausgezeichneten Infrastruktur. Ideal für alle, die Ruhe und Natur lieben, ohne auf Nähe zu Stadt, Arbeit und Mobilität verzichten zu wollen.
Möchtest du, dass ich diese Variante noch kurz und prägnant für die Exposé-Zusammenfassung (1 Absatz) umformuliere?
Widerrufsrecht:
Sie können Ihre Vertragserklärung innerhalb von 14 Tagen ohne Angabe von Gründen in Textform (z.B. Brief, Fax, E-Mail) widerrufen. Die Frist beginnt nach Erhalt dieser Belehrung in Textform, jedoch nicht vor Vertragsschluss und auch nicht vor Erfüllung unserer Informationspflichten gemäß Artikel 246 § 2 in Verbindung mit § 1 Absatz 1 und 2 EGBGB. Zur Wahrung der Widerrufsfrist genügt die rechtzeitige Absendung des Widerrufs. Der Widerruf ist zu richten an: RTI GmbH & Co. KG, Alleestraße 16c, 56410 Montabaur.
Geldwäschegesetz:
Die RTI GmbH & Co. KG ist nach § § 1, 2 Abs. 1 Nr. 10, 4 Abs. 3 Geldwäschegesetz (GwG) dazu verpflichtet, vor Begründung einer Geschäftsbeziehung die Identität des Vertragspartners festzustellen und zu überprüfen. Hierzu ist es erforderlich, dass wir die relevanten Daten Ihres Personalausweises oder Reisepasses festhalten. Das Geldwäschegesetz (GwG) sieht vor, dass der Makler die Kopien und erfassten Daten mit seinen Unterlagen fünf Jahre aufbewahren muss.
Alle Aussagen in diesem Exposé basieren ausschließlich auf Informationen, die vom Eigentümer stammen. Trotz sorgfältiger Prüfung der Objektangaben übernehmen wir keine Gewähr für die Vollständigkeit, Richtigkeit und Aktualität dieser Angaben.
Weitere Informationen finden Sie unter:
www.rheintaunus-immobilien.de
Kontakt per Telefon:
(02602) 9199905
Kontakt per Email:
info@rt-immo.email
Besuchen Sie uns auf unserer Facebook Seite:
www.facebook.com/rheintaunusimmobilien






