



















der vier Wohnungen beläuft sich auf rund 355 m². Die Einheiten sind unterschiedlich geschnitten und sprechen damit eine breite Mieterstruktur an: Eine 2,5-Zimmer-Wohnung mit ca. 85 m², eine 3-Zimmer-Wohnung mit ca. 80 m², eine kompakte 2-Zimmer-Wohnung mit ca. 50 m² sowie eine großzügige 5-Zimmer-Wohnung mit ca. 140 m². Alle Wohnungen sind solide vermietet und befinden sich in ungekündigten Mietverhältnissen.
Zusätzlich ist im Objekt ein Friseursalon mit einer Fläche von ca. 80 m² untergebracht, der sich auf drei Räume verteilt und ebenfalls langfristig vermietet ist. Die vier Garagen mit jeweils ca. 16,5 m² Fläche sind ebenfalls vollständig vermietet und sorgen für zusätzliche Einnahmen.
Die aktuellen jährlichen Mieteinnahmen belaufen sich auf ca. 30.720 Euro und bieten eine stabile Grundlage für Kapitalanleger. Durch die vorhandene Struktur aus Wohnen und Gewerbe sowie die unterschiedlichen Wohnungsgrößen ergeben sich vielseitige Nutzungsmöglichkeiten – von einer klassischen Kapitalanlage bis hin zu einer Kombination aus Eigennutzung und Vermietung.
Das Gebäude hat eine lange Historie und wurde ursprünglich in den 1920er Jahren als Metzgerei errichtet. In den Jahren 1955, 1958, 1988, 1994, 1996 und 2008 erfolgten sukzessive Erweiterungen und Umbaumaßnahmen, wodurch sich die heutige Struktur entwickelt hat. Die Garagen wurden 1982 in Fertigbauweise errichtet und im Jahr 2010 mit einem Pultdach modernisiert.
Insgesamt handelt es sich um ein interessantes Investment mit gewachsenem Bestand, laufenden Einnahmen und weiteren Perspektiven für die Zukunft.
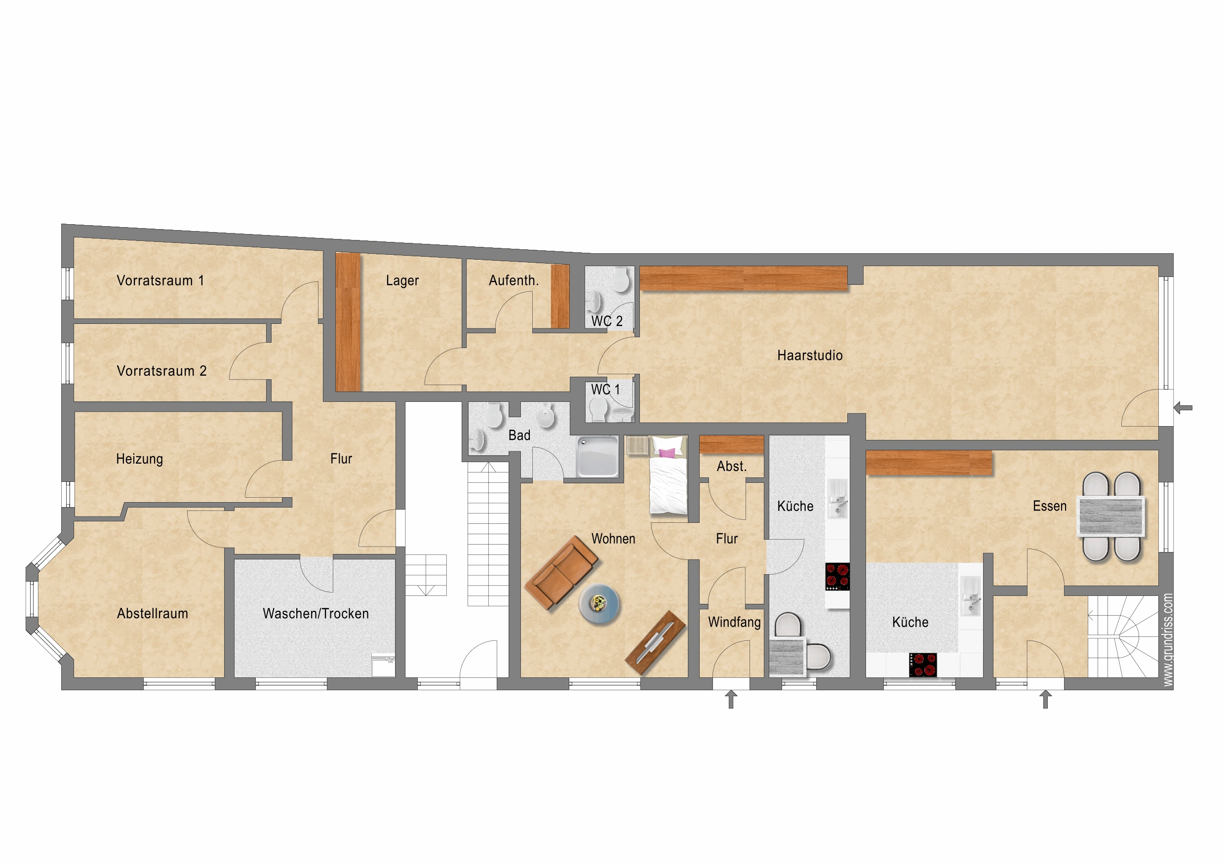
Ausstattung / Raumaufteilung
Wohnung 1 (ca. 85 m², 2,5 Zimmer):
Flur, Küche, Wohnzimmer, Schlafzimmer, Badezimmer
Wohnung 2 (ca. 80 m², 3 Zimmer):
Flur, Küche, Wohnzimmer, Schlafzimmer, weiteres Zimmer, Badezimmer, Gäste WC
Wohnung 3 (ca. 50 m², 2 Zimmer):
Flur, Wohn-/u. Schlafzimmer, Küche, Badezimmer
Wohnung/Haus 4 (ca. 140 m², 5 Zimmer):
EG: Flur/Garderobe, offenes Wohn- Essküche
1.OG: Diele, Wohnzimmer, Badezimmer, 2 Schlafzimmer,
2.OG: Schlafzimmer, Badezimmer
Gewerbeeinheit – Friseursalon (ca. 80 m²):
Eingangsbereich / Empfang, Arbeitsraum, Sozial-Raum (Büro), kleiner Arbeitsraum (Farbküche), er Raum (z. B. Lager/Büro), Sanitärbereich
Kellergeschoss:
Flur, Heizungsraum, Abstellräume / Lagerflächen
Außenbereich:
4 Garagen (je ca. 16,5 m²) auf separatem Garagengrundstück
7 PKW Stellplätze
Sonstiges / Besonderheiten
Wohn- und Geschäftshaus mit 5 Einheiten (4 Wohnungen + Gewerbe)
Sonstiges / Besonderheiten:
- voll vermietet für 30.720,- Euro/ Jahr
- Ursprungsbau aus den 1920er Jahren, ehemals Metzgerei
- Erweiterungen/Umbauten: 1955, 1958, 1988, 1994, 1996, 2008
- 4 Garagen (Baujahr 1982), Dach 2010 erneuert
- 3 PKW Stellplätze
- Baulasten: Flurstücke miteinander verbunden (keine Einzelveräußerung möglich)
- Dach Stammhaus (Schiefer) saniert, Anbau mit Pfannendach
- Dach Anbau 2024 geprüft/repariert
- Teilweise nicht gedämmte Dachbereiche (Kriechspeicher)
- Außenfassade Stammhaus aus den 1970er Jahren, Anbau mit Dämmung (1994)
- Komplettanstrich Gebäude und Garagen 2020
- Fenster Stammhaus überwiegend Alu (1970er), teils erneuert
- Fenster Anbau Kunststoff (1994)
- Bodenbeläge überwiegend Fliesen/Teppich (teilweise erneuert)
- Innenausbau teils hochwertig (Holzeinbauten), Anbau einfacher Standard
- Elektrik Stammhaus 1970er, Anbau 1994
- 4 Gasheizungen (Bj. 1994) für einzelne Einheiten vorhanden
Mengerskirchen liegt im reizvollen Westerwald und bietet eine angenehme Mischung aus naturnahem Wohnen und solider Infrastruktur für den Alltag. Der Ort ist besonders bei Familien und Berufspendlern geschätzt, da sich ruhige Wohnlagen mit einer guten Erreichbarkeit wichtiger Verkehrsachsen verbinden.
Einkaufsmöglichkeiten für den täglichen Bedarf, Bäckereien sowie weitere Dienstleister sind direkt im Ort oder in den umliegenden Gemeinden vorhanden. Für eine umfassendere Versorgung sind größere Städte wie Limburg oder Montabaur in kurzer Zeit erreichbar. Die medizinische Versorgung ist durch ansässige Ärzte sowie Apotheken gesichert, während Krankenhäuser in den nahegelegenen Städten zur Verfügung stehen.
Familien profitieren von einem guten Bildungsangebot mit Kindergärten und einer Grundschule im Ort. Weiterführende Schulen befinden sich in den umliegenden Städten und sind bequem erreichbar.
Die Verkehrsanbindung ist für Pendler besonders interessant: Über die nahegelegenen Bundesstraßen sowie die Autobahnanschlüsse an die A3 sind die Ballungsräume Rhein-Main und Köln/Bonn schnell erreichbar. Zusätzlich bietet der ICE-Bahnhof in Montabaur eine schnelle Anbindung an den Fernverkehr, wodurch Städte wie Frankfurt oder Köln in kurzer Zeit erreicht werden können.
Der Freizeitwert ist hoch: Die Umgebung ist geprägt von Wäldern, Wiesen und zahlreichen Wander- sowie Radwegen. Sportvereine, Freizeitangebote und Naherholungsmöglichkeiten sorgen für eine hohe Lebensqualität und vielfältige Aktivitäten direkt vor der Haustür.
Widerrufsrecht:
Sie können Ihre Vertragserklärung innerhalb von 14 Tagen ohne Angabe von Gründen in Textform (z. B. Brief, Fax, E-Mail) widerrufen.
Die Frist beginnt nach Erhalt dieser Belehrung in Textform, jedoch nicht vor Vertragsschluss und auch nicht vor Erfüllung unserer Informationspflichten gemäß Artikel 246 § 2 in Verbindung mit § 1 Absatz 1 und 2 EGBGB.
Zur Wahrung der Widerrufsfrist genügt die rechtzeitige Absendung des Widerrufs.
Der Widerruf ist zu richten an: RTI GmbH & Co. KG, Alleestraße 16c, 56410 Montabaur.
Geldwäschegesetz:
Die RTI GmbH & Co. KG ist nach § 1 Abs. 2 Nr. 10, § 10 Abs. 1 sowie § 11 Geldwäschegesetz (GwG) verpflichtet, vor Begründung einer Geschäftsbeziehung die Identität des Vertragspartners festzustellen und zu überprüfen.
Hierzu ist es erforderlich, dass die relevanten Daten des Personalausweises oder Reisepasses erfasst werden.
Das Geldwäschegesetz (GwG) sieht vor, dass der Makler Kopien und erfasste Daten mit seinen Unterlagen für die gesetzlich vorgeschriebene Dauer aufbewahren muss.
Haftungshinweis / Objektangaben:
Alle Angaben in diesem Exposé beruhen ausschließlich auf Informationen, die vom Eigentümer zur Verfügung gestellt wurden.
Trotz sorgfältiger Prüfung übernimmt der Makler keine Gewähr für die Vollständigkeit, Richtigkeit und Aktualität dieser Angaben.
Ergänzender Hinweis zu Zustand, Sanierung und Technik:
Angaben zu Zustand, Bauausführung, Sanierungsmaßnahmen, Modernisierungen, Baustand sowie zu technischen Einrichtungen (z. B. Heizung, Elektrik, Leitungen, energetische Maßnahmen) dienen ausschließlich der allgemeinen Information.
Sie stellen keine Beschaffenheitsvereinbarung, Zusicherung oder Garantie dar.
Maßgeblich für den Vertragsinhalt sowie für Rechte und Pflichten der Vertragsparteien sind ausschließlich die Vereinbarungen im notariellen Kaufvertrag.
Hinweis zu möglichen Schadstoffen
Das Vorhandensein von schadstoffhaltigen Baustoffen (z. B. Asbest) kann grundsätzlich nicht vollständig ausgeschlossen werden. Eine Untersuchung auf Schadstoffe wurde nicht durchgeführt.
Eine verbindliche Bewertung ist nur durch eine fachkundige Untersuchung möglich.
Dem Käufer obliegt es, bei Bedarf entsprechende Prüfungen eigenständig vorzunehmen.
www.rti-regional.de
02602 9199905 oder
0171 14 59 517
info@rti-regional.de






